HILLWOOD ROAD
Sutton Coldfield, B75 5QW
GUIDE PRICE
SOLD STC
GUIDE PRICE
SOLD STC
DESCRIPTION

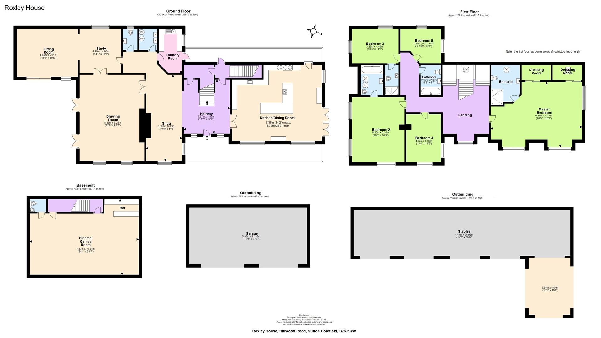
Set in over approximately 3 ACRES of immaculate grounds, this exceptional property combines timeless character with modern luxury, featuring reclaimed brickwork, a grand oak staircase, and versatile living spaces. With stunning landscaped gardens, a large pond, and views over open land, it offers both tranquillity and impressive facilities, including a four-car garage and a new outbuilding with potential for stables or office use. VACANT POSSESSION AVAILABLE.

ACCOMMODATION

Ground floor: Reception hall, kitchen/dining room, snug, drawing room, study, sitting room, WC, boiler room, utility room.
First floor: Principal bedroom with dressing rooms and en-suite, bedroom two with en-suite, bedroom three with en-suite, bedrooms four and five, family bathroom.
Basement: Cinema/games room with bar and additional WC.
Gardens and Grounds: Approximately 3.01 acres of landscaped established gardens, detached four car garage, stables/gym and office, electric gated entrance. Ample space for parking.

Approximate gross internal floor area 7876 sq. Ft (731 sq. M)

EPC Rating: C
DO YOU HAVE A PROPERTY TO SELL?
Arrange your free, no obligation property valuation
 RELATED PROPERTIES 
3 5 0
MONMOUTH DRIVE
Sutton Coldfield, B73 6JS
£895,000
2 5 4
HARDWICK ROAD
Sutton Coldfield, B74 3DH
£1,495,000
3 5 0
THE MOORLANDS
Sutton Coldfield, B74 2RF
£1,495,000
 TESTIMONIALS 
Always organised and very professional. Super friendly and knowledgeable staff happy to help whenever you have any questions.

Marcin Górczyński
Purchaser
Very helpful staff. Were very supportive and kept chasing the people that needed chasing in order to speed up the process. Never let me down and always a pleasure to talk to.

Ben Fenaiech
Purchaser
We recently purchased our forever home from Aston Knowles and they were hands down the best agents we dealt with during our search. Everyone in the office was incredibly friendly and knowledgeable.

Gail, Vicky, Sophie and Gemma were our main contacts and despite tricky sale on our end of the chain where our sale fell through, we couldn't ask for more from them! Always ready to answer any questions and although we were buyers we felt they were our advocates and incredibly respectful, whilst working to the seller's best interests. If we did ever need to sell/buy again we wouldn't hesitate to use Aston Knowles!

After we had moved in, Aston Knowles was still on hand to give advice on local gardeners we may need in the future. Once again, we could not ask for more! Thank you Aston Knowles team!

Amy
Purchaser
Can’t thank everyone @ Aston Knowles for finding us our home. Been a journey and have been guided at each step by their fantastic team. Exceptional service by them all the way through. Special mention for Gail and Vicki - you both are amazing, thanks for all your guidance at each step and being patient with our purchase.

Amitabh Aggarwal
Purchaser
Absolutely superb agency. The staff are all 100% on their game and for us achieved an amazing result within a very short time. After trying a number of local agencies without success we believe we found the best in Aston Knowles. We cant recommend them highly enough. All the staff are hard working, knowledgeable, reliable and friendly and achieved a great result.

Jeanette Jones
Purchaser
Aston Knowles team have been wonderful from our initial meeting to our completion. Kept us informed every step of the way & pushed things when necessary. Always there when needed. Wouldn't hesitate to use again & recommend to others. A big thank you to all the friendly team who assisted us, much appreciate all your hard work.

Annmaria Bennett
Purchaser
On behalf of the Nash family as purchasers of one on your properties we would like to thank Gail and Vicky for your professionalism and quick response in responding to any queries we had.

Aston Knowles offered a first-class service throughout and we would have no hesitation in recommending your company to prospective vendors.

Melissa Nash
Purchaser
Gail and her team showed us the importance of using a professional estate agency.

We initially marketed our house with an online agent who generated little interest. Gemma from Aston Knowles followed up with us and we decided to give them a try.

What a difference! Professional, empathetic an amazing team who really know how to do the job. From Gail who within 4 viewings had secured 2 offers, to Vicky keeping us updated, they were all fantastic.

They sold our house within 1 week of instruction and then managed the whole thing through to completion with an unrivalled level of professionalism.

We cannot recommended this team highly enough.

Thank you Gemma, Gail and Vicky.

Michael Lennon
Purchaser
Having viewed and enquired on a very attractive property on the Aston Knowles website, our interest was handled efficiently and professionally through to completion. Gail was knowledgeable, informative, responsive and friendly throughout, making the buying process as stress free as possible, not an easy task!

Mr Alan Reardon
Purchaser
We had excellent service from all the team at Aston Knowles during our recent Sale and Purchase. Their skill and expertise was very much needed during these current tricky market conditions. They provided numerous potential purchasers and handled all the viewings with care and precision. They took the time to understand our property and matched us to a suitable, proceedable buyer. Whilst no Sale and Purchase is trouble or stress free, Aston Knowles were a calm voice and a steadying influence. We are hoping never to use them again, as they found us the house of our dreams. Would I recommend them, yes most definitely.

M Raybould
Vendor
We want to express our gratitude to Lauren, Gemma, and Amy for their exceptional support throughout our house-hunting journey. They were always prompt and attentive in responding to our queries, whether by email or phone, and provided invaluable assistance in such a challenging market. Their professionalism and dedication made the process much smoother for us. We wholeheartedly recommend Aston Knowles.

D Lamonaca
Purchaser
Simply First Class service and so so knowledgeable about the local market. Gemma and the wider Lettings team know their stuff if you're looking for a "higher" end rental. Dealt with AK for over three years and I've absolutely no doubt I'll use them again to Rent, Market or Buy in Four Oaks/Sutton/Little Aston. Brilliant people all round.

S Sutton
Landlord
As an estate agent i seriously can’t think of anything negative to say, they are all just superb people! Sophie the LEGEND sold one of my properties for £300,000 more than what another estate agent in the area was telling me it’s worth, and then also finding us our dream home at the same time. I’ve used Sophie twice to sell a property now and both times she’s delivered.

I can’t recommend Aston Knowles enough! Excellent throughout!!

Appreciate everything you’ve done for us from Lloyd and family.

L Dyer
Vendor
On behalf of Chris and myself as purchasers of one on your properties we would like to thank you and Vicky for your professionalism and quick response in responding to any queries we had.

Aston Knowles offered a first-class service throughout and we would have no hesitation in recommending your company to prospective vendors.

Karen & Chris Nash
Purchasers
Having viewed and enquired on a very attractive property on the Aston Knowles website, our interest was handled efficiently and professionally through to completion. Gail was knowledgeable, informative, responsive and friendly throughout, making the buying process as stress free as possible, not an easy task!

Alan Reardon
Purchaser
NEWSLETTER SIGN UP
Be the first to learn about property news. Upcoming events, new developments as well as our services
Contact us
8 High Street,
Sutton Coldfield,
B72 1XA

0121 362 7878
enquiries@astonknowles.com




Copyright © 2021 Aston Knowles | Website design by Swof Media